menu

SADDLECREST ESTATES

WEATHERFORD, TX

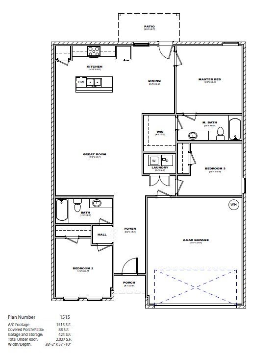
1515 SF