menu

SADDLECREST ESTATES

WEATHERFORD, TX

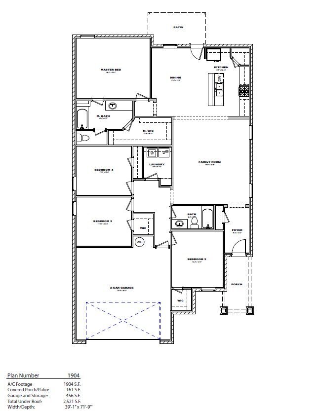
1904 SF